The Complexities of Production Planning for Pharmaceutical Facilities

By Michael Cloud, Manager of Construction, Jacobs
Gratefully acknowledge the contributions of Scott Donnelly, Director of Engineering, Merck; Jeff Beck, Executive Project Manager, Jacobs; Mike D’Avanzo, Vice President / Regional Manager, Total Facility Solutions
As the construction industry has matured, so have planning techniques. Many of us are familiar with the critical path method, some with takt planning, others with interactive planning, and those of us who attend Lean training events are familiar with the Last Planner System®. Two sister projects located in Virginia and North Carolina, sponsored by Merck, focused their planning philosophy on lean construction principles – particularly flow. A collaborative team of Merck, Jacobs, and several trade partners developed a schedule, eventually coined the “production strategy,” and albeit not perfect, the projects were successful, recording more than 3.7 milllon work-hours and a combined safety TRIR of 0.37.
The production strategy used several planning methods as it evolved. Where the team initially thought takt planning was the sole answer to flow, we discovered that it was more effective to utilize different methods depending on what we were constructing. Rather than limiting the team to one method, it was more effective to utilize any or all methods given the extreme complexity of the buildings. We used takt planning for repeatable short sequences of work, pull planning for long durations of work, and we used Primavera P6 to integrate each system (e.g., air, water, steam), which we called the “backbone.”
Approach
Projects of this complexity are comprised of many different build-types. In our case, the buildings were comprised of mechanical space, pipe rack space, clean utility space, office space, training rooms, electrical/CSR rooms, and the processing (clean room) suites. Each build-type (by level) was considered a zone, and each zone was evaluated for a takt versus pull approach. Zones assigned a pull approach exhibited long working duration activities (or boxcars) and would not be broken into areas. Zones assigned a takt approach exhibited repeatable sequences of work activities, with rhythmic durations, and were defined into areas (see Figure 1) based on a variety of factors, including the quantity of work, crew size, and duration.

Figure 1 – Processing Suite Defined Into Areas
Pull Planning
Pull planning is a core step for InterActive Planning sessions and the Last Planner System®. It starts with identifying the steps of work to be done, and the sequence those steps are to be completed. In the case of clean utilities, we selected a pull planning approach because of its qualities (see Figure 2). The clean utility train was a single zone, heavily populated with piping, electrical and equipment, and the layout was not conducive to a repeatable sequence since it was routed based on process engineering requirements.
The sequence of our pull plan started with evaluating the top-down construction of the zone. Building the bottom before the top is a cardinal mistake in construction, which can lead to increased scaffolding costs and unsafe elevated work. In the case of clean utilities, we identified the pick point steel and hangers as the start of our sequence. The next part of the sequence was the overhead mechanical, electrical and piping (or rough-in) but it was slightly overlapped with the hangers. The zone proved to be complex because the sequence could alternate between different trades. To manage this, and avoid trade stacking, the team had to be very disciplined in their weekly work planning.
Figure 2 – Clean Utilities Pull Plan (click image to download)
Takt Planning
Takt planning proved effective for repeatable sequences, which is why it applies well to high-rises and healthcare facilities. In our case, it proved effective for the office space, support spaces, and processing suites. The complexity of the processing suites required three different phases (or trains) – the interstitial phase, the suite phase, and the equipment fit-out phase (see Figure 3). The area sizes were determined by the width of the suite, then evaluating the quantity of work for each trade, and optimizing the crew size for the area footprint.

Figure 3 – Interstitial, Suite, and Equipment Phases
Before the next phase can be released, the predecessor phase must finish – the relationship between the two is called the release point. Releasing work before the predecessor work is finished can significantly disrupt the flow on a project, so it’s important to define release points as part of the plan (regardless if it’s a takt or pull plan). The team defined the release points for each phase as follows: For the interstitial phase, the work was released when the high bay was finished; for the suite phase, it was floor completion; for the equipment fit-out phase, it was equipment setting.
Each phase had factors that impacted the crew size versus duration versus area size. These factors are illustrated in the combined schedule (see Figure 4). The interstitial phase was driven by the amount of ductwork, the number of fan coil units, and the ceiling area size. The suite phase was driven by the amount of wall track, panels, in-wall devices, and the equipment setting. The equipment phase was driven by the quantity of utility piping, hygienic piping, power wiring, and control wiring.
Figure 4 – Combined Interstitial, Suite, Equipment Fit-out Schedule (click image to download)
Execution by Trade Partner
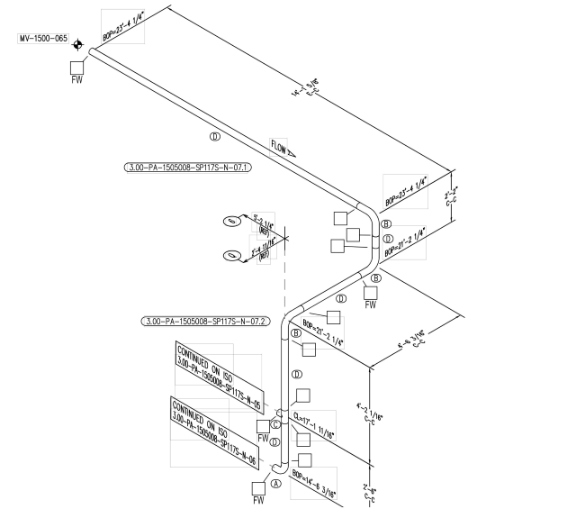
Another key factor of the production strategy is that it must be developed and owned by the trade partners. The trade partners help define the activities, the sequence, and make their commitment to the overall strategy. This collaboration and buy-in is critical to success. In order to understand the commitments the trade partner prepares their data in advance to determine and justify how much work they have in each boxcar and in the overall phase. In the example of hygienic piping, the hygienic trade partner calculates the linear footage of piping, the number of welds, and the number of isometrics from the isometric spool (see Figure 5). This data converts to work-hours which can be optimized in terms of crew size and duration.

Figure 5 – Example of Hygienic Pipe Spool
After the production strategy is in place, the trade partners convert their activities to weekly work packages, which are distributed to the crews. Once the work package is completed, the spent hours can be compared to the earned hours, and the progress can be reviewed on a weekly basis.
Successes and Learnings
There are several successes and learnings from the production strategy journey.
- The production strategy takes time. The entire team, especially the trade partner force, has to commit and be disciplined when preparing the data that backs the strategy. There will be iterations of the strategy over time as the team optimizes it.
- Collaboration is a key requirement between design and field. As the strategy is developed, the true critical path of the project becomes more clear. The construction team must provide to the design team priorities for release of the design packages, and design must be flexible as those prioities change. The strategy is an iterative process.
- Create the initial strategy in the early preliminary design phase and refine in early detail design. Starting the strategy too late does not allow enough time to develop the strategy before construction begins. Starting the strategy too early does not allow the design team enough time to provide the data that backs the commitments made by the trade partners.
- Do not release work until the strategy is ready and the team is fully committed.
- The strategy can be compartmentalized depending on the size of the project. Phases can be added if the teams feels they are necessary.
- Boxcar descriptions list the steps and activities within a work activity. It also includes the data that supports the crew size. It is also beneficial to note the crew size required to complete the work.
- The cadence for meetings should be discussed with the core team. Our team reviewed the production strategy three times a week – a look ahead at the current week, a look ahead at the next six weeks, and a look back at the previous week to review what was completed and to calculate the percent planned complete (PPC.)
- The Primavera P6 “backbone” is important to maintain the right relationships between systems.
- Offsite fabrication and modularization aid to takt and pull planning. The boxcar activities become simpler to plan for the field, when the work has been pushed to the shop.
In conclusion, the production strategy drove visibility on the work being performed. It aided with proper sequencing and defended out-of-sequence work. Constraints were readily understood in real time and could be addressed swiftly. Ultimately, the strategy helped the team maintain Lean construction principles – particularly in relation to its focus on process and flow.

